CN드림 캐나다 앨버타주 1등 신문

자유게시판

묻고답하기

렌트•홈스테이

[렌트] 전체렌트 / 남녀 / 1400 / 하베스트 / 가구 방1 콘도

작성자 whyistheskyblu지역 Calgary 게시물번호 68680 작성일 2026-03-30 03:42 조회수 12

렌트종류 : 전체렌트
성별 : 남녀
월세 : 1400
위치 : 하베스트
연락처 : 4035897585

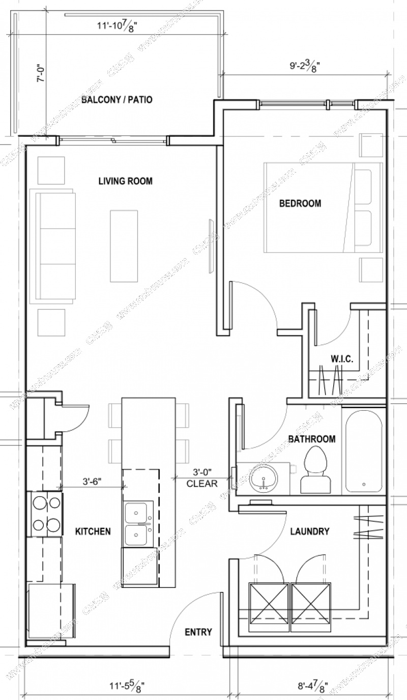
2023년 건축 Harvest Hills 콘도입니다!

- 600 sq ft. 1 bed 1 bath  

- 9 ft ceiling, LED lights, 대리석 kitchen island, Stainless steel 삼성 가전제품 세트 (오븐, 세탁기, 드라이어, 전자렌지, 디시워셔), walk-in closet, large laundry room/창고, 워크아웃 발코니

- 인터넷, 가스, 수도세 포함. 전기세만 부담

- 지정 주차공간 1개

- 가구 포함: Queen bed, 서랍장, Smart TV+수납장, 소파, 책상+의자, 창고용 선반, small appliances, 밥솥, 접시 및 모든 부엌용품

 

주변 시설이 많아 편한 위치입니다. 다운타운 차로 20분 , 콘도 앞 버스 정류장, 공원/놀이터 산책로가 5분 내에 있습니다. SE view 로 빛도 잘 들어오고 뒤에 전망이 확 트여있습니다.

5분거리: Superstore, T&T, Home Depot, Landmark Cinemas, VIVO rec centre, 킨조, 스타벅스, 맥도날드, restaurants, cafes, Deerfoot Trail, 버스정류장 (공항, 컨트리힐스 빌리지 등 버스 1대로 연결 가능 )

10-15분거리: 공항, Stoney 트레일, Costco, H Mart, Crossiron Mall

기간: 5월1일부터 6개월 혹은 1년 계약 (date flexible)

디파짓: $1400

문자나 오픈카톡으로 편하게 연락주세요 감사합니다.

https://open.kakao.com/o/sYN5oc4h



주요뉴스